コンテンツへスキップ
愛知県春日井市の一級建築士事務所・宅地建物取引業者です。
TOP
WORKS
house
renovation
collective house
shop
clinic・welfare
office
proposal
furniture
sign・branding
INFORMATION
OFFICE
いむいむblog
メニューを閉じる
検索切り替え
メニュー
ホーム
> 添付ファイル
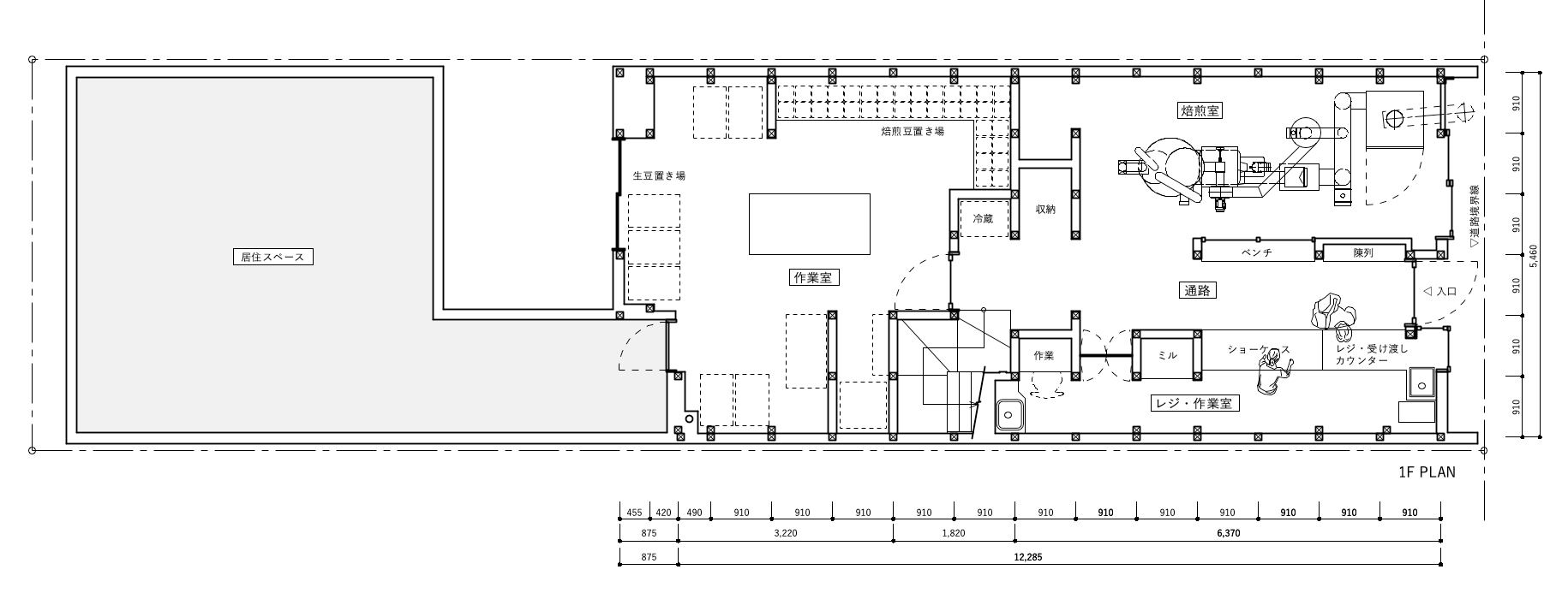
1FPLAN
検索
検索
閉じる